


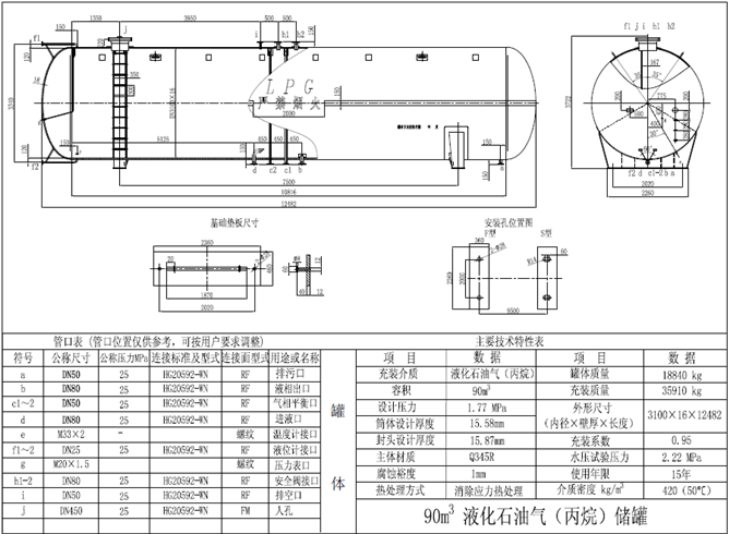
90立方液化氣儲罐一般多設計成直徑3100mm,設計壓力為1.77MPa,封頭為橢圓形,主體材料為壓力容器產品專用鋼板——容器板Q345R,罐體上鞍座和接管的位置可按用戶的要求進行調整,以下為大眾的90方規格參數,供大家參考。
產品名稱:90立方液化氣儲罐
設計標準: GB150鋼制壓力容器,壓力容器安全技術監察規程
容積:90立方
充裝介質:液化石油氣(丙烷)
介質密度:420kg/m3
設計壓力: 1.77MPa
容器類別:Ⅲ類
制作材料:Q345R
公稱直徑:3100 mm
筒體設計厚度:15.58mm
封頭設計厚度:15.87mm
筒體厚度:16 mm
封頭厚度:18 mm
外型尺寸(長*寬*高):12482*3132*3722 mm
充裝質量: 35910 kg
罐體重量: 18840 kg
水壓試驗壓力:2.22 MPa
熱處理方式:620℃消除應力熱處理
設計使用年限:20年
液化氣儲罐噴漆
液化氣儲罐生產過程必須按《GB150-2011壓力容器》標準進行,噴漆也不例外,且罐體的顏色也有規定,不能隨意噴涂。罐體外表面涂刷環氧鐵紅底漆二道,丙烯酸灰中底漆一道,丙烯酸金屬漆(銀灰)二道,并用大紅油漆沿罐體水平中心刷一道寬150mm色帶。噴上“嚴禁煙火”字樣。