


液化氣儲罐是液化氣站內貯存LPG的重要設備,一般根據容積劃分其規格,主要有10立方,20立方,30立方,50立方,100立方等,可根據用戶的要求定制不同容積的儲罐,今天為大家介紹30立方的液化氣儲罐。
產品名稱:30立方液化氣儲罐
設計標準: GB150鋼制壓力容器,壓力容器安全技術監察規程
容積:30立方
充裝介質:液化石油氣(丙烷)
介質密度:420kg/m3
設計壓力: 1.77MPa
容器類別:Ⅲ類
制作材料:Q345R
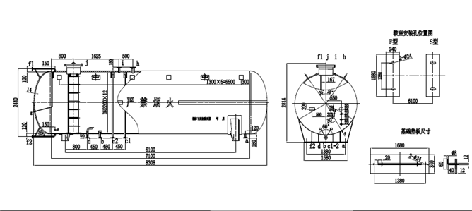
公稱直徑:2200 mm
筒體設計厚度:11.35mm
封頭設計厚度:11.33mm
筒體厚度:12 mm
封頭厚度:14 mm
外型尺寸(長*寬*高):8308*2224*2814 mm
充裝質量: 11970kg
罐體重量: 7260kg
水壓試驗壓力:2.22 MPa
熱處理方式:620℃消除應力熱處理
設計使用年限:20年
液化氣儲罐噴漆
液化氣儲罐生產過程必須按《GB150-2011壓力容器》標準進行,噴漆也不例外,且罐體的顏色也有規定,不能隨意噴涂。罐體外表面涂刷環氧鐵紅底漆二道,丙烯酸灰中底漆一道,丙烯酸金屬漆(銀灰)二道,并用大紅油漆沿罐體水平中心刷一道寬150mm色帶。噴上“嚴禁煙火”字樣。